Per visualizzare le notizie di ogni singola giornata è sufficiente cliccare sul link sotto la data corrispondente.
Venerdì 1 Aprile
Clicca per leggere gli aggiornamenti del 1 aprile
- 01/04/2011 - 07:00: E' ancora l'acqua contaminata ad essere il problema imminente numero 1. TEPCO (fonti NHK) e questa volta si tratta di acqua trovata sotto terra nei pressi degli edifici turbine di 5 di 6 reattori, non si può dire nulla del restante reattore (il n. 4) perché è stato impossibile controllarlo. TEPCO dice che è possibile che tutti gli elementi volatili presenti in atmosfera siano ricaduti a terra e abbiano contaminato l'acqua oppure che questa si sia contaminata "lavando" il reattore durante le operazioni di innaffiamento.
- Dopo la dichiarazione di un dipendente TEPCO che doveva lavorare senza un dosimetro personale, la società ha promesso che sospenderà i lavori a bassa priorità in modo da poter fornire a ciascun lavoratore un dosimetro. E intanto sta recuperando altri dispositivi da altre centrali (fonte NHK).
Il sito di NISA in lingua inglese non è più aggiornato a partire dal 30 marzo, se qualche anima più potesse trovare qualcosa di più recente sulla pagina giapponese e tradurla vi saremmo grati.Grazie a Micchan abbiamo degli aggiornamenti da NISA tradotti direttamente dal Giapponese (report 66):
- al reattore 1 gettate 90t di acqua nella piscina (ieri)
- al reattore 3 gettate 105t di acqua (sempre ieri)
- al reattore 4 hanno cominciato stamattina.
- la nave americana con l'acqua pulita sta arrivando in porto (ieri)
- Il resto sono annunci sulla macchina che e' penetrata a Fukushima II e sul fatto che si occuperanno delle condizioni di sicurezza degli operai.
- 21 operai sono stati esposti a piu' di 100mSv
- Ho trovato un bell'articolo sulla prospettiva di Fukushima. E' in inglese, se proprio non ci capite niente, proviamo a tradurlo insieme.
- 01/04/2011 - 10:30: Per la prima volta dall'inizio della crisi, Edano si è presentato in conferenza stampa vestendo giacca e cravatta e non la divisa d'emergenza. Ha riportato quanto discusso nella riunione di gabinetto su argomenti generali e non direttamente rilevanti sulla situazione di Fukushima. Riporto alcune domande e risposte in breve senza pretesa di essere traduzioni testuali
- Si chiedono chiarimenti circa la situazione dell'acqua sotterranea. TEPCO aveva annunciato alcuni valori di contaminazione che adesso vorrebbe rivalutare. Edano dice che si vuole fare un ricalcolo basato su più campione. L'acqua è e resta contaminata e quindi bisogna monitorare l'acqua del mare.
- Quando si arriverà al cold shutdown e quando rientreranno gli evacuati? Il prima possibile. Non c'è una data, ma la situazione sta diventando sempre più chiara ogni giorno e quindi presto ci sarà un piano. Per il momento gli evacuati resteranno fuori casa per parecchio tempo e sarà necessario attrezzare scuole. E' difficile dire se questo lungo periodo sarà un mese o un anno.
- Ci sarà la nazionalizzazione di TEPCO? TEPCO sarà supportata dal governo, ma ancora non è chiaro come.
- Perché non indossa la tuta d'emergenza? Anche oggi ci sono persone che si stanno adoperando per aiutare a recuperare i danni del disastro. Ma serve fare un passo in avanti e guardare anche alla ricostruzione. Anche gli altri ministri hanno messo la giacca e cravatta durante la riunione di gabinetto. Questo è il messaggio dietro a questo cambio d'abito.
- Radioattività nella carne sopra i limiti. E' la prima volta. Commenti? Come prima cosa è importante notare come il cibo sia controllato e solo un campione sia risultato positivo. Adesso serve capirne la provenienza. Il livello rivelato, anche se sopra i limiti, non è tale da causare danni alla salute se assunti occasionalmente. Non ci sono rischi immediati, ma un'assimilazione continua nel lungo termine potrebbe avere effetti negativi e si stanno valutando le contromisure necessarie.
Il mio commento. Il fatto che TEPCO voglia rivalutare i dati non è così preoccupante, non credo vogliano nascondere i numeri anche perché in genere pubblicano sia l'originale e il corretto così vedremo quali sono le differenze e se sono sostanziali. Per il futuro non ci sono ancora certezze: il piano è di portare alla stabilità gli impianti nucleari, ma ancora non c'è una road map con tempi definiti. La domanda sulla tuta mi ha fatto un po' sorridere, ma devo dire che ho subito notato anch'io il suo cambio di abbigliamento.
- 01/04/2011 - 15:30: Un corposo articolo di NHK ci da la situazione dell'acqua. Nel mare antistante la centrale di Fukushima è arrivata una nave cisterna americana che sta trasferendo a terra acqua pulita da utilizzarsi come refrigerante al posto dell'acqua di mare, cosa già in atto da alcuni giorni.
- Gli operatori TEPCO sono anche riusciti a svuotare il contenitore esterno esterno dell'unità 2 e adesso lo stanno riempiendo con l'acqua contenuta nel condensatore di vapore nel corrispondente locale turbine.
- C'è anche un tentativo in corso volto a vedere se si può utilizzare una resina sintetica indurente per impedire alle sostanze volatili e radioattive di disperdersi. La stanno provando su una superficie nei pressi del reattore 4 e ne valuteranno l'efficacia entro 2 settimane.
- Arriva anche la conferma ufficiale che il terremoto ha superato i limiti di disegno per 3 dei 6 reattori di Fukushima, in particolare il numero 2, il 3 e il numero 5. Trovate i dati qua.
- Dopo il problema della mancata assegnazione dei dosimetri personali come richiesta dalla legge, oggi la compagnia elettrica ha annunciato che rilascerà versione corrette delle letture effettuate sui valori di radioattività. Stando a quanto riportato, un baco nel programma avrebbe portato ad una sovrastima di tecnezio 99 e tellurio 129. I conti sarebbero giusti per lo iodio che ha decisamente un impatto maggiore sulla salute umana.
- Trovate un sommario delle notizie trasmesse da NHK anche sul bollettino di JAIF.
- Piano per lo stoccaggio e la purificazione dell'acqua contaminata. World Nuclear News riporta che gli ingegneri della TEPCO starebbero per iniziare la costruzione di una cisterna con capienza 6000 tonnellate e una vasca per altre 4000 con lo scopo di contenere temporaneamente l'acqua contaminata e che sta riempiendo i vari serbatoi del sito. Insieme a questi verrà costruita anche una facility per la decontaminazione dell'acqua in grado di 20 tonnellate di acqua all'ora in particolare quella che proviene dai sei reattori e che altrimenti finirebbe diretta in mare. Cisterna e vasca dovrebbero essere pronte verso il 15 di questo mese, mentre l'impianto di decontaminazione alla fine di aprile.
- 01/04/2011 - 17:30: Nella versione inglese dell'ultimo aggiornamento disponibile di TEPCO, troviamo le seguenti novità.
- Unità 2: Il condensatore di vapore è stato svuotato e l'acqua trasferita nella cisterna di riserva della vasca di soppressione. Nel pomeriggio giapponese si è stata inviata acqua nella piscina del combustibile esausto.
- Unità 4: Per tutta la giornata o quasi, la piscina del combustibile esausto è stata innaffiata con acqua.
- La nave US con un carico di acqua dolce ha attraccato al molo della centrale ed è iniziato il trasferimento verso cisterne sulla terraferma. Durante le operazioni, un operatore è caduto in mare e dopo essere stato prontamente soccorso dai membri dell'equipaggio è stato controllato per una possibile contaminazione. Nonostante il test fosse negativo, è stato sottoposto ad un controllo di Whole Body Counting per verificare contaminazione interna.
- La città di Shizuka ha accettato di prestare alla TEPCO la loro mega nave cisterna che sarà ormeggiata in modo permanente di fronte alla centrale e servirà per lo stoccaggio dell'acqua.
- Ecco la mappa di dose nei pressi della centrale aggiornata ad oggi.
Il Fattoquotidiano e l'intervista all'Ing Ruffatti
Abbiamo cominciato ieri sera a discutere dell'intervista rilasciata dall'Ing. Ruffatti a Fattoquotidiano. Il contenuto dell'intervista che potete leggere qui. Il messaggio dell'articolo era piuttosto pessimista e si prospettava una situazione catastrofica con conseguenze ben peggiori a quelle di Chernobyl.
Tra i commenti dell'articolo, appariva però una sorta di rettifica a firma di Ruffatti, così mamoru per confermare la veridicità della rettifica ha scritto direttamente a Ruffatti (indirizzo email) chiedendo spiegazione e il permesso di pubblicare integralmente la risposta su Giappopazzie e su unico-lab (grazie!)
La risposta non si è fatta attendere e la potete leggere qui...
Bravo mamoru!
Abbiamo cominciato ieri sera a discutere dell'intervista rilasciata dall'Ing. Ruffatti a Fattoquotidiano. Il contenuto dell'intervista che potete leggere qui. Il messaggio dell'articolo era piuttosto pessimista e si prospettava una situazione catastrofica con conseguenze ben peggiori a quelle di Chernobyl.
Tra i commenti dell'articolo, appariva però una sorta di rettifica a firma di Ruffatti, così mamoru per confermare la veridicità della rettifica ha scritto direttamente a Ruffatti (indirizzo email) chiedendo spiegazione e il permesso di pubblicare integralmente la risposta su Giappopazzie e su unico-lab (grazie!)
La risposta non si è fatta attendere e la potete leggere qui...
Bravo mamoru!
- 01/04/2011 - 22:00: Commentiamo l'aggiornamento di IAEA. In 98 di 111 campioni di vegetali, spinaci, frutta, frutti di mare, carne varie e latte in otto prefetture (Chiba, Fukushima, Gunma, Ibaraki, Kanagawa, Niigata, Tochigi, and Tokyo) o non è stato trovato iodio e cesio o sotto i limiti legali. I restanti 13 alimenti provenienti dalle prefetture di Chiba, Fukushima, Ibaraki e Tochigi sono stati trovati positivi allo iodio o al cesio. Il ministero della salute Giapponese ha vietato la distribuzione e il consumo di una lista di alimenti nelle prefetture di Fukishima, Gunma e Tochigi. Trovate la lista completa qui.
Sabato 2 Aprile
Clicca per leggere gli aggiornamenti del 2 aprile
- 02/04/2011 - 09:00: Il comunicato stampa di TEPCO ci conferma dell'esperimento in corso di utilizzare una resina per coprire le superficie fortemente contaminate ed evitare che il vento le re-disperda nell'ambiente circostante. E' stata selezionata un'area di prova di 200 metri quadri nei pressi della vasca comune del combustibile esausto. Inoltre ci conferma che 8 dei punti di monitoraggio della radiazione sul bordo della centrale sono tornati in funzione dopo il terremoto e che adesso si sta lavorando per rimetterli on-line e disponibili per il pubblico.

- Fonti NHK (nel video di questa pagina) affermano che TEPCO avrebbe trovato il motivo per cui l'acqua di mare sarebbe così altamente contaminata. Sarebbe stata individuata una crepa in un pozzetto di cemento nei pressi del reattore numero 2 che permette all'acqua contaminata (dose alla superficie > 1Sv/h) starebbe andando direttamente in mare.
Arriva anche l'immagine della frattura nel cemento nel pozzetto antistante il
locale turbine della "presa" dell'acqua del reattore 2. Il pozzo è profondo 2 metri e contiene da 20 a 10 centimetri d'acqua altamente radioattiva. Come prima cosa verrà tappata la crepa con del cemento, e poi si cercherà di capire come è arrivata l'acqua fino al pozzetto.
- 02/04/2011 - 12:00: In attesa di ulteriori notizie circa la crepa, riportiamo due notizie apparse su NHK circa misure di radioattività. Per la prima volta dall'inizio dell'emergenza, acqua di mare contaminata con iodio (80 Bq/l) sopra i limiti stabiliti dalla legge per le acque di scarico della centrale è stata trovata fuori costa, all'interno della prefettura di Fukushima (NHK). La seconda notizia si riferisce al rilevamento di alti livelli di rateo di dose (100 microSv/h) sulle prese d'aria dei motori degli elicotteri militari usati per i sorvoli della centrale. I militari USA hanno avvisato l'esercito Giapponese che le vernici usate per quelle parti tendono ad accumulare Cesio (NHK).
- Nell'aggiornamento di ieri, avevamo detto che sarebbe arrivata una nave cisterna e che verrà utilizzata per stoccare acqua. Oggi abbiamo la conferma che 9 delle 18mila tonnellate di capacità saranno utilizzate per acqua contaminata. Prima di arrivare nel porto antistante la centrale, verranno rimosse le separazioni interne delle cisterne. (JAIF)
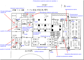
- Pozzetto crepato. Su NHK è stato trasmesso una bella spiegazione della posizione dei vari pozzi e delle gallerie tecniche. L'immagine è di pessima qualità, tra le foto ad alta risoluzione non ce ne sono da questa angolazione. L'edificio più in alto con un'etichetta ocra parzialmente coperta dalla scritta è il reattore 2. Più sotto l'edificio coperto dall'etichetta rossa è il locale turbine del reattore 2. In giallo e verde invece vedete le gallerie tecniche dove è stata trovata acqua fortemente contaminata. Proprio sul bordo della centrale, con il fumetto arancione trovate il pozzetto con la crepa che sta rilasciando contaminanti in mare.
![]() |
Posizione del pozzetto e della crepa da dove acqua contaminata si riversa in mare |
- 02/04/2011 - 14:00: Arrivato il comunicato ufficiale TEPCO circa la crepa. Questa è di circa 20 cm di larghezza ed è stata vista acqua fluire verso l'oceano. La cosa interessante è che ne hanno prelevato un campione di cui stanno facendo la spettroscopia gamma (identificazione degli isotopi) presso la centrale di Fukushima Daini. Questo è importante perché confrontando la composizione isotopica con l'acqua trovata nelle cantine del locale turbine e nei tunnel se ne potrà confermare la provenienza.
- 02/04/2011 - 15:00: E' arrivato il comunicato stampa ufficiale di IAEA. Oltre a dare la notizia del giorno, ovvero la crepa nel tombino di cui abbiamo già abbondantemente parlato, fa un breve riepilogo della situazione dei reattori che vediamo nel seguito.
- Reattore 1. Acqua fresca viene continuamente iniettata nel pressure vessel del reattore (RPV) attraverso la linea di alimentazione dell'acqua con un flusso misurato di 8 metri cubi all'ora. La temperatura del vessel misurata all'ingresso dell'acqua è scesa di qualche grado attestandosi intorno ai 250 gradi centigradi, invece la temperatura sul fondo del vessel è di 120 gradi. La diminuzione della temperatura è stata accompagnata da una corrispondente diminuzione di pressione sia nel pressure vessel che nel contenimento esterno. Novanta tonnellate di acqua sono state iniettate nella vasca del combustibile esausto usando il camion per le gettate di cemento.
- Reattore 2. Acqua fresca è iniettata attraverso il circuito dell'impianto anti-incendio con un flusso di 9 metri cubi all'ora. La temperatura misurata alla connessione dell'ingresso dell'acqua è di 160 gradi circa mentre la temperatura alla base del RPV non è disponibile. Il livello di pressione del contenimento (drywell) è quello atmosferico. Questa mattina (CET) è ricominciato il raffreddamento della vasca con il combustibile esausto usando una pompa temporanea.
- Reattore 3. Acqua è iniettata nel nocciolo attraverso il sistema anti-incendio. La temperatura all'ingresso dell'acqua è circa 120 gradi mentre sul fondo è di 90 gradi.
- Reattore 4. 180 tonnellate d'acqua sono state iniettate con il camion per le gettate di cemento nella piscina del combustibile esausto.
- La situazione radiologica. Non si è notata una significativa variazione di dose ambientale gamma rispetto a ieri. E' stata rivelata la deposizione di iodio in 7 prefetture (da 7 a 74 Bq/m2) e di cesio in 9 prefetture (da 2.9 a 76 Bq/m2). Concludiamo con la mappa di dose.
- 02/04/2011 - 23:00: In questi minuti nel video on-line su NHK si dice che l'acqua contaminata dal pozzetto crepato sta ancora andando in mare. La gettata di cemento non è riuscita ad addensarsi a causa della presenza di troppa acqua. Gli operatori della TEPCO stanno provando con un polimero sintetico. Vedremo domani mattina i risultati.
Domenica 3 Aprile
Clicca per leggere gli aggiornamenti del 3 aprile
- 03/04/2011 - 8:00: Non ci sono molti aggiornamenti. All'interno del comunicato TEPCO troviamo la descrizione di quanto annunciato ieri sera alle 23:00. Ci viene confermato che hanno fatto due gettate di cemento, ma che il flusso d'acqua ha continuato a riversarsi in mare e quindi stanno valutando una macromolecola polimerica. Esperti con attrezzature sono partiti da Tokyo ieri sera (JST) e dovrebbero già essere sul sito.
- Il Primo Ministro Kan ha chiesto a tutti uno sforzo sovraumano per bloccare la perdita di radioattività. Inoltre si è cominciato a misurare i livelli di radioattività all'interno della regione evacuata (< 20km). Non si era mai fatto fino ad ora perché non essendoci di fatto residenti era ritenuta un'inutile esposizione alle radiazioni del personale incaricato. Al momento non abbiamo la piantina con i numeri, ma stando a quanto dichiarato a NHK la situazione è molto variabile e si va da poco meno di un microSv a circa una cinquantina l'ora. (NHK)
- 03/04/2011 - 9:15: La TEPCO conferma che i due operai dati per dispersi dopo lo tsunami sono deceduti. Nel messaggio di condoglianze apparso sul loro sito, non si specifica se e dove sono stati ritrovati i corpi. La notizia viene ripresa anche da NHK che conferma il ritrovamento nel locale turbine del reattore 4. Il disastro naturale dell'11 marzo ha altre due nuove vittime. L'attenzione dei media, e anche tutta la nostra diretta, ha troppo spesso sottovalutato il prezzo in vite umane di questa tragedia.
- 03/04/2011 - 11:45: Anche se con un po' di ritardo ci arriva la traduzione del comunicato stampa di TEPCO con l'aggiornamento alla 1 (JST). C'è un evoluzione tecnica importante: nei locali turbine di tutti e quattro i reattori maggiormente colpiti è tornata la luce, questo non significa che tutti gli strumenti sono alimentati, ma più semplicemente che alcuni locali sono illuminati. E' poco, ma è un passo in avanti. Per le unità 1, 2 e 3, l'acqua di raffreddamento dei reattori viene ora pompata grazie alla corrente elettrica che arriva da linee di trasmissione esterne, in altre parole, non sono più usate né generatori diesel né autopompe (altro piccolo passo in avanti!)
- Continua il trasferimento di acqua di raffreddamento pulita dalle navi cisterna verso la centrale.
- Una breaking news su Kyodo sembra confermare che il polimero utilizzato per assorbire l'acqua nel pozzetto non stia sortendo effetto. Attendiamo conferme ufficiali. Resta da valutare la portata di questa perdita perché se cemento e assorbenti non riescono a bloccarla, bisogna rintracciarne al più presto l'origine.
- La notizia viene ora riportata anche NHK. Apparentemente è ancora poco chiara l'efficacia del polimero assorbente.
- 03/04/2011 - 12:45: Sommario conferenza stampa di Edano (video). Non è una traduzione precisa, solo un breve riassunto di alcune domande e dichiarazioni.
Inizia con sue dichiarazioni spontanee.
- E' preoccupato per la perdita dell'acqua dal tombino.
- Visto il prolungarsi della situazione di emergenza si sta valutando come sistemare al meglio coloro che sono stati evacuati e di ridisegnare una mappa della regione evacuata in base ai monitoraggi di dose ambientale e del terreno che sono quotidianamente effettuati.
- In particolare, viene tenuta controllata la situazione della tiroide dei bambini e infanti. Fino ad oggi, nessuno dei bambini è stato trovato oltre i limiti fissati dalla legge.
- Quanto durerà ancora: mesi o anni? Come contenere il rilascio è in fase di studio, più possibilità sono studiate simultaneamente. Non è ancora chiaro quanto sarà efficace. La cosa importante è che stiamo monitorando. Il governo non vuole fare previsioni che inducano false illusione.
- Cosa prevedete di fare? Due cose principalmente: raffreddare i reattori e bloccare la fuoriuscita di materiale radioattivo. Entrambe le cose sono al momento condotte simultaneamente. Non è possibile fare stime adesso, ma è necessario aumentare i punti di monitoraggio e decidere come ristrutturare la zona di evacuazione. Adesso stiamo facendo le analisi.
- Rivedere la zona di evacuazione: significa rimpicciolirla? La zona di evacuazione viene definita in base al monitoraggio della radiazione e non ci facciamo nessun pregiudizio. La definizione si basa sulla sicurezza dei cittadini.
- Gli operatori di Fukushima. Sono tutelati da TEPCO? Condoglianze alle famiglie dei due operai deceduti. Sono stati riportati problemi alla sicurezza delle persone che lavorano alla centrale, in particolare quelli esposti. La sicurezza di questi lavorati deve essere garantita, e abbiamo richiesto a TEPCO di garantirla, insieme a garantire dignitose condizioni di vita.
- TEPCO deve rendere pubbliche tutte le informazioni che hanno, anche se a volte possono venir mal interpretate.
- Ci sarà una commissione di indagine? Certamente. Con tutti gli esperti del caso.
- 03/04/2011 - 16:30: Facciamo un piccolo aggiornamento sulla situazione radiologica. Cominciamo con le misure di fall out ovvero la caduta a terra di materiale radioattivo. Trovare il PDF qui. Il riassunto è il seguente. Deposito di iodio-131 è stato rivelato nelle prefetture di Iwate, Fukushima, Ibaraki, Tochigi, Gunma, Saitama, Chiba; cesio-137 si è depositato in Iwate, Fukushima, Tochigi, Saitama, Chiba e Tokyo. Per quanto riguarda l'acqua potabile, sono state trovate tracce di iodio nelle seguenti prefetture: Fukushima, Tochigi, Gunma, Saitama, Chiba, Tokyo, Kanagawa e Niigata, in nessun caso al di sopra dei limiti precauzionali per i bambini. Cesio-137 è stato trovato in Fukushima, Tochigi, Gunma, Saitama, Chiba e Tokyo, tutti ben al di sotto dei limiti legali. Concludiamo con la mappa di dose ambientale nell'area al di fuori della zona evacuata. Per sapere la dose ambientale prefettura per prefettura, potete consultare questa pagina.
- 03/04/2011 - 19:15: Aggiungo qualche fotografia che ci è stata gentilmente fornita da Ste sulla perdita localizzata al "tombino" che sta riversando litri d'acqua contaminata in mare. La NHK ha stimato che il flusso d'acqua è di circa 2 litri al secondo ovvero più di sette tonnellate all'ora. Al momento il polimero sintetico, che è molto simile a quello utilizzato nei pannolini dei bambini, non sembra aver portato alcun beneficio. Stanno buttando questo polimero misto a segatura e giornali (per piacere non ridete) poco più a monte del tombino perché sperano di otturare quei buchi che vedete nella foto più a destra. Giustamente però nel momento in cui questo condotto sarà ostruito, visto il flusso, l'acqua comincerà a strabordare da qualche altra parte. Si fa sempre più urgente trovare l'origine della perdita.
- Valeriano si è offerto di commentare aggiungendo "etichette" identificative ad alcuni edifici dell'impianto nucleare, in particolare cercherà di identificare quelli contenti i generatori diesel d'emergenza. Nel frattempo, Markogts ha trovato un ottimo sito con foto commentate. Vale proprio la pena di visitarlo.
Lunedì 4 Aprile
Clicca per leggere gli aggiornamenti del 4 aprile
![]() |
Percorso stimato dell'acqua |
- 04/04/2011 - 7:00: Facciamo un breve riepilogo di quello che è successo nella notte italiana che è stata già una buona parte di giornata in Giappone. La notizia che domina la prima pagina di NHK è che i tecnici TEPCO stanno cercando di identificare il percorso della perdita. Per farlo stanno buttando un liquido bianco nel tunnel e dopo di che ripeteranno l'operazione di ieri con il polimero assorbente. Non sono ancora convinti se questa è veramente la via seguita dall'acqua perché ieri non hanno visto i pezzi di giornale passare attraverso la crepa.
- Tra le altre notizie, ne leggiamo una che sicuramente non ci piace: le operazioni per eliminare le perdite di acqua radioattiva potrebbero richiedere mesi. Il piano è svuotare il locale turbine e rifar partire il sistema di raffreddamento "normale". Ce ne un'altra ancche non propriamente tecnica, ci fa storpiare un po' il naso: apparentemente il governo ha rilasciato i calcoli previsionali effettuati con SPEEDI solo il 23 marzo dopo che li ha avuto disponibili a partire da il 16. Con SPEEDI è stato simulato un rilascio a partire il giorno 14 e avrebbe mostrato livelli di radiazioni molto elevati a nord ovest e a sud ovest della centrale con livelli sopra i 100 mSv/annui in alcuni punti anche al di fuori dei 30 km se la popolazione fosse rimasta all'aria aperta.
- Il rapporto JAIF, che da qualche giorno riporta solo le notizie NHK, aggiunge che i test effettuati sulla tiroide di 900 fra bambini e ragazzi sono tutti risultati negativi. La tiroide è una spugna che accumula iodio e in presenza di iodio radioattivo rischia di "riempirsi" di questo radioisotopo che potrebbe generare un cancro. La misura dell'attività di iodio presente nella tiroide è un esame assolutamente non invasivo e che può immediatamente confermare l'assimilazione o meno del radio-isotopo.
- L'aggiornamento tecnico dei reattori lo possiamo riassumere nella tabella JAIF che però non riporta grandi novità.
- Edano nella sua conferenza stampa ha detto che la perdita in mare deve finire. E nel frattempo la TEPCO sta studiando modi di limitare la dispersione in mare, costruendo una specie di barriera nel mare.
- 04/04/2011 - 11:30: Ancora non ci sono buone notizie. La TEPCO (fonte NHK) si è ormai convinta che l'acqua che esce in quantità abbondante dalla crepa nel tombino che vi abbiamo mostrato nelle foto, potrebbe non arrivare da dove pensavano. Per capirlo hanno buttato un forte colorante a monte e non lo hanno visto passare a valle. Questo spiegherebbe anche perché non sono riusciti ad ottenere nulla con il polimero assorbente. Sarebbe interessante confermare il livello di radioattività dell'acqua che entra in mare, magari conoscerne la composizione isotopica. I risultati erano previsti per oggi, se qualcuno dei lettori Giapponesi li trovasse e ce li inviasse vi saremmo molto grati.
- Se l'acqua non arriva da dove credevano i problemi sono almeno due: c'è la grossa perdita che già conosciamo da tappare e una di cui ancora non sappiamo nulla da trovare. Nel frattempo si stanno progettando delle soluzione per evitare il disperdersi in mare dei contaminanti. Non si tratta di soluzioni definitive e tanto meno efficaci al cento per cento. Si basano sul fatto che tendono a confinare all'interno delle acque interne al porto della centrale la maggior parte dei radioisotopi e lasciare che questi vi decadano senza inquinare tutto il resto.
- Nel frattempo però Kyodo e NHK diffonde la notizia che TEPCO starebbe considerando l'ipotesi di sversare in mare il contenuto di alcune cisterne con acqua contaminata che stanno rallentando le operazioni di svuotamento dei locali turbine. Si parla di migliaia di tonnellate d'acqua. Speriamo di trovare presto una conferma ufficiale con magari anche una stima della composizione isotopica e di attività.
- Su GiappoPazzie trovate tutti gli ultimi dati circa le rivelazioni di radiazione. Il post è stato aggiornato questa mattina.
- Grazie a mamoru abbiamo identificato i generatori diesel di emergenza, nel caso del reattore 3 si trovano nel locale interrato dell'edificio turbine. mamoru ha anche tradotto l'intera planimetria che andremo a pubblicare nel primo pomeriggio con alcuni commenti tecnici.
- Nei prossimi minuti, troverete un nuovo post a firma di ilmarion con le caratteristiche tecniche della resina che vorrebbero utilizzare per coprire i detriti contaminati della centrale al fine di evitare ulteriore deposizioni.
- 04/04/2011 - 13:30: Arriva la conferma da TEPCO che acqua con bassi livelli di radioattività verrà rilasciata in mare. Il problema è che l'acqua del locale turbine 2 è altamente radioattiva e necessita di essere stoccata nel deposito comune per le scorie per un mantenimento in sicurezza. Questo contiene già un qualcosa come 10 mila litri di acqua debolmente contaminata (non ci è dato sapere quanto debolmente e neppure se l'acqua è conservata in un'unica cisterna o meno). Inoltre si sta accumulando acqua negli scarichi delle unità 5 e 6 e che potrebbe presto raggiungere l'edificio e intaccare sistemi di sicurezza. Quindi per evitare guai peggiori si è deciso di rilasciare in mare circa 10mila tonnellate di acqua a bassa contaminazione dal deposito comune e altre 1500 dagli scarichi di 5 e 6. E' stata fatta una stima di dose alla popolazione in questo modo: pensate di mangiare tutti i giorni dell'anno pesce o altri prodotti marini pescati nell'acqua antistante la centrale. In tal caso assorbirete, stando alla stima, 0.6 mSv di dose, un quarto di quella che si assume in un anno dal fondo naturale di radiazione.
- 04/04/2011 - 14:30: NISA ha inoltrato a IAEA la comunicazione che TEPCO intende scaricare nell'oceano quelle 11500 tonnellate di acqua contaminata. L'operazione non è ancora iniziata e IAEA chiede ulteriori informazioni sull'acqua.
- Ci viene confermato che nel reattore 1, l'acqua è iniettata nel core attraverso la linea di alimentazione dell'acqua, mentre attraverso il sistema anti-incendio nei reattori 2 e 3.
- 04/04/2011 - 15:00: Stando a quanto dice la NHK, TEPCO ha iniziato lo sversamento a mare. Hanno valutato che non sia dannoso per il mare, probabilmente comparandolo a quello che potrebbe essere lasciare trafilare acqua ben più contaminata. Speriamo di aver presto le analisi spettrometriche (che isotopi contiene) quest'acqua, se non saranno disponibili su TEPCO, sicuro lo saranno su IAEA perché è stato espressamente richiesto.
- 04/04/2011 - 21:00: Sono tre gli aggiornamenti che stiamo aspettando: la composizione isotopica delle acque che dalla crepa sta andando in mare, gli isotopi contenuti nell'acqua che si sta trasferendo in mare dalle cisterne di stoccaggio e il livello di radioattività dell'acqua a riva e a 30 km nei punti che sono stati stabiliti. Purtroppo nessuna di queste informazioni è ancora (già) disponibile in lingua inglese sui vari siti ufficiali. Se qualche lettore dal Giappone li trovasse e ce li traducesse gli saremmo grati. Per quanto riguarda l'acqua di mare abbiamo i dati sui campioni raccolti ieri 3 aprile. Visto che i campionamenti avvengono ogni due giorni, ci aspettiamo di avere i primi dati dopo i rilasci di oggi a partire da dopo domani. Per essere preparati vi riporto la tavola con le misure e anche i punti di campionamento. Se preferite questa è la versione PDF.
- Trovate 3 tabelle, la prima con i valori di concentrazione di iodio e cesio sia in superficie sia ad un centinaio di metri di profondità. La seconda tabella contiene la misura di dose alla superficie espressa in microSv/h e come potete vedere sono molti bassi. La terza contiene le misure di fall-out. Ovvero si è aspirata una certa quantità di aria facendola passare per un filtro e misurando l'attività della polvere in termini di Bq/m3. Teniamoci pronti a confrontare questa tabella con la prossima in arrivo, per vedere l'effetto dello sversamento. Su questo vorrei aggiungere che mentre sottocosta l'effetto sarà immediato, la diluizione abbatterà di molto le concentrazioni ad una trentina di km dalla costa.
- Oggi NHK confermava che la dose ambientale al di fuori della zona di evacuazione tende ad abbassarsi o si è stabilizzata. Questo lo avevamo già notato anche noi guardando la cartina di dose qui sotto riportata.
- E' la stessa NHK però a confermarci che in una cittadina (Namie Town) al di fuori della zona evacuata è stata misurata una dose integrata di oltre 10 mSv dall'inizio dell'emergenza. Questo valore supera i criteri del governo per stabilire una zona classificata come "da rimanere in casa". La dose integrata è un altro parametro importante da tenere sotto controllo. Infatti se in un punto si ha un rateo di dose alto, ma passeggero non conviene evacuare tutta la città, perché ora che si inizia la procedura è possibile che il peggio sia già passato proprio quanto tutti erano in strada ad aspettare l'autobus. Nel caso di ratei di dose bassi, ma prolungati allora è la dose integrata il parametro che ha più senso per definire una zona di possibile evacuazione legata al perdurare dell'emergenza. Spero di essermi spiegato.
- Un comunicato TEPCO ci informa che ha ricevuto un rimprovero ufficiale orale da parte di NISA circa la diffusione di misure di radioattività non controllate a dovere. In particolare si riferisce alla misura di Tellurio che aveva fatto pensare a possibili criticità accidentali al reattore 1. Nel comunicato TEPCO spiega la causa dell'errore: un problema con la libreria dei radio-isotopi utilizzata. Uso con frequenza sistemi di spettrometria gamma e so quanto è critica la compilazione della libreria. Questo per dire che è possibile aver commesso un errore e non dobbiamo per forza gridare al complotto o all'insabbiamento. Certo ci aspetteremmo maggior prudenza di fronte ad un risultato così inaspettato; mi spiego avendo trovato un possibile segno di criticità devi rifare l'analisi e controllare mille volte che non ci siano errori prima di comunicarla al mondo. TEPCO ha deciso che da ora in avanti comunicherà subito i dati relativi agli isotopi certamente individuati (vedio iodio e cesio) mentre controllerà a fondo tutti gli altri picchi fino alla loro completa definizione. Spero solo che non significhi ritardi epocali.
- Abbiamo trovato i generatori diesel. O meglio mamoru ha tradotto la planimetria del piano interrato dell'edificio turbine del reattore 3. E vi ha trovato i generatori di emergenza a gasolio. Ovvio che essendo sotto il livello del terreno è bastato poco per inondarli. Ecco la planimetria.
- ilmetapapero ci ha consigliato un link interessante riguardo lo stato dell'arte come percepito da Areva, il colosso nucleare francese. Sono una trentina di diapositive, in inglese, piuttosto facili da comprendere. Le trovate sul suo blog a questo indirizzo. Se volete possiamo discuterne nei commenti.
- Un amico ingegnere nucleare, mi ha segnalato i documenti che sono stati preparati e messi a disposizione dall'AIN (Associazione Italiana Nucleare). Li trovate qui.
Martedì 5 Aprile
Clicca per leggere gli aggiornamenti del 5 aprile
- 05/04/2011 - 07:00: TEPCO ha rilasciato alcune informazioni (uno e due)circa l'acqua di mare, ma sono misure vecchie. Questa mattina invece NHK conferma che i primi prelievi dopo che sono state riversate le prime migliaia di tonnellate d'acqua, la concentrazione di iodio-131 è salita a livelli altissimi. Si parla di milioni di volte i livelli legali (NHK). C'era proprio da aspettarselo; ma ripetiamo l'importanza di conoscere la composizione isotopica dell'acqua scaricata, perché lo iodio è sì pericoloso, ma potrebbe essere il minore dei mali se anche altri isotopi sono scaricati in quantità abbondanti.
- Continuano i tentativi di bloccare la perdita dal tombino crepato. La TEPCO (NHK) presume che l'acqua possa arrivare da una tubatura rotta, ma per il momento l'acqua continua a fluire nel mare. Sabato era stata trovata una concentrazione di 300kBq/cm3 di iodio radioattivo nell'acqua e ieri mattina si era ridotta a 200kBq/cm3. Livelli oltre il milione di volte i limiti legali sono stati trovati anche per il ben più pericoloso cesio. Si stanno installando anche delle barriere in mare nel tentativo di bloccare il diffondersi dei contaminanti. E si continua anche a lavorare sull'altro fronte dell'acqua, quello contenuto nelle cantine dei locali turbine che sta venendo pompato verso cisterne per lo stoccaggio.
- Nella conferenza stampa, Edano ha ribadito che la pesca resta proibita nelle acque della prefettura di Fukushima. Verrà monitorato il pescato della prefettura di Ibaraki per verificarne la sicurezza e controlli verranno estesi su una vasta area.
- La tavola sinottica JAIF non riporta nessuna variazione. Se volete la trovate a questo PDF.
- 05/04/2011 - 10:30: La TEPCO ha rilasciato un aggiornamento sulla situazione nella centrale. Andiamo a vedere cosa è cambiato rispetto alla situazione precedenti.
- Per l'unità 1 non ci sono grosse novità. Si continua a trasferire l'acqua dal condensatore di vapore nel locale turbine verso la cisterna all'esterno.
- Per l'unità 2 nella giornata di ieri si è gettata acqua nella vasca del combustibile esausto.
- Anche l'unità 3 è stata innaffiata, ma il rapporto non specifica cosa, se il contenimento del reattore o la vasca dei combustibile esausto.
- A seguito del richiamo ufficiale di NISA, TEPCO sta rivalutando le misure effettuate nei giorni precedenti che avevano individuato prodotti di fissione nelle acquee di scarico dei reattori e nell'aria nei pressi della centrale.
- Per quanto riguarda il problema della perdita dal tombino: non è ancora chiara la strada percorsa dall'acqua e quindi la sua origine. Si sta ipotizzando una perdita in un condotto. Nel frattempo è stata trovata anche altra acqua nelle gallerie tecniche del reattore 3. L'acqua è contaminata, ma non troppo. La quantità d'acqua si è stabilizzata quando si è smesso il trasferimento dal condensatore di vapore alla vasca comune esterna.
- Ci confermano che stanno svuotando in mare le cisterne con acqua contaminata per far posto a quella molto più contaminata contenuta nei locali turbine del reattore 2.
- 05/04/2011 - 16:20: Ci sono novità tecniche di cui parlare. E' arrivata l'analisi isotopica dell'acqua. Trovate tutti i PDF sul sito TEPCO, ma la tabella che tutti vogliamo vedere è qui sotto
- C'è un però. A causa del rimprovero ufficiale di NISA, questa tavola riporta solo i valori per iodio-131, cesio-134 e cesio-137. Non significa che non ci sono altri isotopi, ma che eventualmente verranno aggiunti dopo quando identificati con certezza. Di questi tre isotopi il più pericolo è sicuramente il cesio per la sua vita lunga (30 anni di emivita), mentre lo iodio può avere un impatto se la popolazione viene esposta a larghe dosi senza aver assunto una quantità saturante di iodio stabile per proteggere la tiroide. Ripeto che questo è utile se e solo se si è esposti a grandi dosi di iodio.
Veniamo ai numeri sulla tabella. Le varie colonne sono misure di campioni prelevati in varie posizioni, sono tutte più o meno contaminate allo stesso modo. Fate attenzione a non farvi ingannare dalla virgola (è usata come separatore di migliaia e non come decimale).
Stiamo parlando di alcuni megabecquerel MBq per cm3, che si trasforma in Giga Bq per litro sia per lo iodio, sia per il cesio nel caso dell'acqua del pozzetto, diminuiscono leggermente andando negli scarichi dei singoli impianti.
Visto questi numeri è evidente perché abbiano scelto di scaricare a mare l'acqua contaminata che avevano già sul sito: perché questa è molto meglio e si deve arrestare il prima possibile questa perdita. - C'è anche una parziale buona notizia. NHK ci informa che il cemento con l'aggiunta di un additivo silicato di sodio (fonte ilmarion) sta avendo un effetto come potete vedere dalla foto che ci ha inviato Ste.
- E' ovvio che tappare la perdita non basta, bisogna risalire a monte e chiudere l'acqua. Ma apparentemente le indagini di questa mattina hanno sortito il loro effetto e i tecnici stanno risalendo il percorso dell'acqua per bloccarlo o comunque trasferirlo in un contenitore più sicuro.
- 05/04/2011 - 17:00 Arriva il rapporto IAEA sugli eventi della giornata. La situazione dei reattori e delle vasche per i combustibili esausti è ben riassunta anche se probabilmente non è l'ultimissima disponibile. Potete anche confrontarla con i numeri offerti da JAIF in questa tavola.
- IAEA ci consegna anche un aggiornamento sulla situazione radiologica. La situazione è che la dose ambientale e il fall-out sono stabili o in diminuzione, segno che non ci sono più importanti rilasci dall'impianto. La situazione del mare presentata da IAEA si riferisce a prima che iniziasse lo sversamento in mare dell'acqua contaminata, come nelle tabelle riportate nell'aggiornamento serale di ieri. Dal punto di vista alimentare, i test presentati ieri e riguardanti i giorni precedenti su verdura, frutta, pesci e frutti di mare sono risultati tutti negativi, nel senso che il livello di iodio e cesio era non rivelabile o ben al di sotto dei limiti di legge.
- Per la prima volta è stato pescato un pesce con livelli di cesio sopra il livello previsto dalla legge (fonte NHK). Il pesce proviene dalla prefettura di Ibaraki e le pescherie della zona hanno deciso di sospendere la vendita di questa tipologia di pesce.
- Concludiamo con la mappa di ratei di dose aggiornata a questa sera.
Mercoledì 6 Aprile
Clicca per leggere gli aggiornamenti del 6 aprile
- 06/04/2011 - 7:00: Nell'ultimo aggiornamento di ieri, avevamo visto che l'agente indurente (vetro liquido) stava cominciando a sortire qualche effetto facendo calare il flusso di acqua altamente contaminata che si riversava direttamente in mare. Questa mattina cominciamo continuando questa buona notizia: la falla è chiusa come potete vedere dalla foto qui sotto. A riportarlo sono le maggiori testate on-line, riporto quello della NHK e TEPCO. Nello schema a fianco si può capire dove si trovava la crepa che ha creato tanto disagio. La cosa importante è capire se l'acqua troverà un'altra via verso l'oceano oppure se il pompaggio dai locali turbine è sufficiente. Grazie a Micchan e Mamoru abbiamo la traduzione in italiano dell'immagine. Un grazie anche a frisigo e Valeriano per essersi offerti nella traduzione.
- Viene anche confermato che per il momento la dispersione della resina verde per mantenere a terra i contaminanti rilasciati dagli impianti e per evitare la re-dispersione in atmosfera, sembra funzionare.
- La TEPCO sta anche considerando di iniettare azoto in forma gassosa (non liquido!) nel reattore 1 e magari a seguito anche nei reattori 2 e 3. Lo scopo è quello di evitare che l'idrogeno che possibilmente si sta accumulando all'interno del vessel a causa dell'ossidazione dello zircaloy ad alte temperature possa causare altre esplosioni.
- Aggiungiamo due aggiornamenti da JAIF, si tratta dell'andamento della dose a Fukushima e nelle prefetture vicine e la consueta tavola sinottica della situazione.
- 06/04/2011 - 9:30: Arriva la conferma da TEPCO che ci sarà l'iniezione di azoto gassoso nel pressure vessel del reattore 1. Gli operatori della centrale hanno il sospetto che idrogeno si stia accumulando all'interno del vessel e che per prevenire che questa concentrazione possa raggiungere la soglia dell'esplosione, hanno deciso di inserire azoto per rendere più inerte l'atmosfera. NHK aggiunge che queste centrali sono dotate di un circuito ad hoc per immettere azoto nell'interno del vessel, ma stando a quanto dichiarato, i tecnici preferiscono utilizzare un circuito alternativo. Al momento non conosciamo le ragione per questa decisione e neppure quale sia la vita che intendono utilizzare. Le operazioni inizieranno a partire da questa sera in Giappone (quindi entro poche ore in Italia).
- 06/04/2011 - 10:15: La NHK sta diffondendo la notizia che donne incinte e bambini fino all'età di tre anni possono richiedere di essere evacuati dalla cittadina di Iitate. Questa cittadina, nonostante fosse al di fuori della zona di evacuazione e anche dei 30 km di stay-indoor aveva fatto segnare livelli di dose integrata particolarmente alta.
- 06/04/2011 - 17:00: Qualche aggiornamento tecnico prima di tutto. Dallo schema qui a fianco capiamo la necessità di aggiungere azoto all'intero del pressure vessel. Come potete vedere è possibile che reazioni di ossidazione abbiamo provocato un accumulo di idrogeno nella parte alta (l'idrogeno è molto leggero) del vessel. Stando a quanto dichiarato a NHK, TEPCO ha programmato di immettere 6mila metri cubi (credo standard) di azoto gassoso all'interno del vessel nei prossimi 6 giorni. TEPCO sta concordando con il governo come procedere perché l'operazione potrebbe causare un rilascio in atmosfera di gas o vapori radioattivi.
- Bloccata la perdita dell'acqua altamente contaminata che finiva direttamente nell'oceano, ritorna il problema dello stoccaggio dell'acqua che ancora si trova nel locali turbine dei reattori 1, 2 e 3. Una prima stima parla di circa 50 mila tonnellate d'acqua. Mettendo insieme tutte le cisterne disponibili sul sito incluso quelle di cui è prevista la costruzione (fine prevista inizialmente per metà aprile, ora posposta a fine mese) si dovrebbe aver a disposizione una capienza di 60 mila tonnellate. Ogni giorno però si utilizzano circa 500 tonnellate per raffreddare i reattori e si è consapevoli che esistono delle perdite per cui una parte di quest'acqua tornerà nelle cantine e dovrà essere stoccata (fonte NHK).
- Un secondo test ha riscontrato la presenza di plutonio nel suolo della centrale (fonte NHK). Aspettiamo il rapporto dettagliato di TEPCO per discutere di numeri, ma le fonti giornalistiche dichiarano che sono stati prelevati quattro campioni che sono stati analizzati da un ente esterno e che in uno di questi è stata riscontrata una concentrazione di plutonio-238 di 0.26 Bq per kg. Questo valore è circa la metà della precedente rivelazione e la composizione isotopica conferma che proviene dall'attuale emergenza in corso e non dagli esperimenti nucleari avvenuti in passato. La concentrazione totale di plutonio nel terreno non è però molto dissimile da quella prodotta dai test militari.
- E' arrivato l'aggiornamento IAEA. Dal punto di vista dello stato dei reattori non dice nulla di nuovo, ma è un buono spunto per l'analisi della situazione radiologica. In breve, la situazione non è particolarmente critica, è stabile o tende a migliorare. Per chi fosse in Giappone e volesse sapere lo stato della contaminazione, in particolare degli alimenti o dell'acqua potabile consiglio di consultare gli aggiornamenti su MEXT o su Giappo Pazzie; se poi volete un aiuto nell'interpretare i dati non esitate a chiedere. Aspettiamo per le prossime ore il livello di contaminazione dell'acqua di mare, che prontamente pubblicheremo appena disponibili, anzi qualora fossero già disponibili in giapponese sul sito di MEXT, chiedere la cortesia di inviarceli con una chiave di lettura.
- 06/04/2011 - 21:45: Arriva la conferma TEPCO della rivelazione del plutonio. E' come descritta da NHK e trovate l'analisi completa a questo link. In poche parole, è stato trovato plutonio che arriva dalla corrente emergenza nucleare, ma che non è molto più alto del livello che in passato si è avuto a causa dei test militari. Insieme al plutonio, è stata fatta un'analisi gamma per la ricerca di altri isotopi, trovate la tabella in questo PDF. Questi isotopi sono tutti prodotti di fissione e hanno una vita relativamente breve da non potersi trovare in natura, quindi il loro fondo dovrebbe essere bassissimo: infatti fatta eccezione per il cesio-137 che nella prefettura di Fukushima nell'anno 2011 aveva una concentrazione massima di 27 Bq/kg, tutti gli altri erano sotto il livello minimo di rivelazione.
- La TEPCO conferma che alle 22:30 (JST) è iniziata la manovra di iniezione di azoto nel contenimento stagno. E' stata concordata con gli enti governativi la procedura in modo da minimizzare le possibilità di un rilascio in atmosfera di elementi radioattivi volatili. Questa mattina veniva detto che TEPCO stava valutando un sistema alternativo per questa procedura rispetto a quello già previsto da disegno, non sappiamo quale verrà seguito, ma quello qui sotto è lo schema che seguiranno.
- E' apparso su MEXT l'aggiornamento circa la situazione della contaminazione dell'acqua di mare ad una trentina di km dalla costa. Attendevamo questa misura per valutare l'impatto dello sversamento delle molte tonnellate di acqua fortemente contaminata proveniente dal tombino (ora chiusa) e di quella lievemente contaminata che è in corso. La misura è effettuata a giorni alterni e purtroppo non sempre negli stessi punti quindi non è perfettamente confrontabile con quella di 2 giorni fa prima dell'inizio dello sversamento. Il PDF lo trovate a questo link, mentre qui sotto la tabella e la cartina.
- Stando a questi numeri la situazione non sembra essere peggiorata, il che significa che il grosso contributo di contaminazione lo stava effettivamente facendo l'acqua in uscita dal tombino, piuttosto che quella di cui è iniziato lo sversamento. Da tenere sotto controllo anche la situazione della contaminazione dei pesci.
Giovedì 7 Aprile
Clicca per leggere gli aggiornamenti del 7 aprile
- 07/04/2011 - 7:00: E' ancora presto per avere aggiornamenti ufficiali in lingua inglese circa quanto è avvenuto in questa prima parte della giornata in Giappone. NHK ci riporta che l'iniezione di azoto in forma gassosa nel reattore 1 sta avvenendo senza problemi. Vorrei ricordare, visto che ieri è possibile che abbiamo fatto confusione, che l'azoto è iniettato nel PCV, ovvero Primary Contaiment Vessel, che è quella struttura che contiene il pressure vessel che invece contiene il nocciolo. Trovate tutto ben descritto in questo schema. Per il momento si è solo osservato un leggero aumento della pressione all'interno del reattore il che fa ben sperare gli operatori che continueranno in questa procedura per i prossimi giorni fino ad iniettare 6000 metri cubi standard di gas.
- Viene confermato che se l'operazione avrà successo, verrà effettuata anche sui 2 e 3.
- Quando ieri annunciavamo contenti che il buco nel pozzetto crepato era stata toppato, avevamo anche detto che ora bisognava fare attenzione e capire se l'acqua non stia seguendo un'altra via o si stia accumulando da qualche parte. Apparentemente nelle ultime 24 il livello dell'acqua nel locale interrato dell'edificio turbine è salito di 5 cm, il che conferma che l'acqua del tombino arrivava effettivamente da qui e ribadisce l'importanza di svuotare questi locali. La TEPCO ci conferma che il livello attuale dell'acqua è ancora ad un metro dal piano terra, quindi c'è ancora un po' di tempo per poter procedere con il pompaggio.
- Le analisi dell'acqua di mare fatte nei pressi della presa d'acqua del reattore 2, dove c'era la perdita, presenta ancora livelli molto alti di iodio e cesio, ma già di molto ridotti rispetto a quelli misurati prima di otturare la falla. E continua anche a scendere il livello a 300 dal canale di scarico della centrale.
- Edano ha confermato che la zona di evacuazione intorno alla centrale potrebbe essere rivista. Infatti l'agenzia per la sicurezza nucleare ha deciso di rivedere al ribasso i limiti per la definizione delle zone di evacuazione così che sarà possibile far evacuare famiglie che si trovano nell'attuale regione di "stare in casa". Edano ha altresì detto che stanno valutando la possibilità di consentire brevi rientri nelle proprie case per recuperare oggi di valore e di prima necessità.

- 07/04/2011 - 11:30: C'è qualche aggiornamento tecnico da parte di TEPCO. Sono stati effettuati nella giornata di ieri campionamenti di radioattività nell'aria all'interno della centrale di Fukushima Daiichi (anche in quella di Daini, per completezza di informazione). Qui sotto vi riporto sia la tabella con i radioisotopi sia l'andamento nel tempo negli ultimi giorni. Vedete che non ci sono state grandi variazioni.
- NHK ci conferma che nonostante il livello di iodio nell'acqua di mare di fronte alla centrale sia sceso rispetto ai valori di ieri resta ancora molto elevato rispetto al limite legale. Anche lo stesso Edano ha dichiarato che questa diminuzione non significa necessariamente che tutte le perdite sono state chiuse.
- Per quanto riguarda il trasferimento dell'acqua dalle cantine del reattore 2 alle apposite cisterne che si stanno svuotando, TEPCO (fonte NHK) dice che ci vorrà parecchio tempo. Anche se le operazioni di svuotamento sono previste entro fine di questa giornata, prima di cominciare a pomparvici dentro acqua altamente contaminata è necessario verificare l'integrità di queste vasche che erano state progettate per bassi livelli di contaminazione e che il terremoto potrebbe aver compromesso. Quello che si vuole evitare è di trasferire in fretta e furia acqua altamente radioattiva verso le cisterne per poi scoprire che queste la stanno lasciando andare nel terreno.
- Un particolare che forse ci era sfuggito e che ci viene confermato da NISA è che l'acqua fredda viene iniettata dei RPV, ovvero nei pressure vessels.
- 07/04/2011 - 13:30: Ecco la situazione della contaminazione dell'acqua negli scarichi dei reattori 2 e 4 e al canale di scarico dell'intera centrale. Questi campioni sono stati prelevati nella giornata di ieri e possono essere confrontati con quelli che abbiamo pubblicato in quest'altra tabella del 5 aprile (attenzione a confrontare le colonne giuste!)
- La cosa confortante è che da quel prelievo a quello di oggi si è visto una diminuzione di quasi un fattor cento, nonostante il livello resti molto al di sopra dei limiti imposti dalla legge per gli impianti nucleare.
- 7/04/2011 - 16:30: In un lancio di agenzia di NHK si comunica che a seguito dell'iniezione dei primi 500 metri cubi circa di azoto (gassoso), la pressione interna è aumentata. NHK riporta due numeri il valore attuale (1.76) e l'incremento (0.2), ma non riporta nessuna unità di misura e non dice se si tratta della pressione del dry-well o quella del pressure vessel. Confrontando questi numeri con quelli che abbiamo pubblicato in questa tabella non è chiaro capire a cosa si riferisce. Aspettiamo il comunicato alla stampa di TEPCO per evitare inutili speculazioni.
- Ci segnalano (grazie Riccardo Parenti in arte Kokeshi design) che è appena terminata una scossa di 7.4 gradi con epicentro vicino a MIyagi (fonte). Restiamo in attesa di possibili ripercussioni sulla centrale.
- TEPCO ha confermato che non ci sono al momento problemi con le due centrali di Fukushima. Il personale è stato evacuato in modo da metterlo in sicurezza perché resta valido l'allerta tsunami.
- Rientrato pochi minuti dopo l'allarme tsunami.
- 7/04/2011 - 19:30: Mentre TEPCO conferma che questa violenta scossa di terremoto non ha avuto conseguenze sulla travagliata centrale di Fukushima, la centrale di Onagawa (della Tohoku non TEPCO) ha perso due delle tre linee di alimentazione esterne con cui stava raffreddando il combustibile dal 11 marzo scorso. Per il momento il raffreddamento sta continuando utilizzando l'unica linea rimasta (fonte NHK). Prime notizie dichiaravano l'entrata in funzione dei gruppi elettrogeni come anche riportato da mamoru (link). Attendiamo qualche altra comunicazione ufficiale per vedere come evolve la situazione.
- Su IEEESpectrum viene chiarita la situazione dell'iniezione di azoto (gassoso, perché c'è sempre qualcuno che pensa all'azoto liquido). Come già spiegato l'aggiunta di azoto è una misura precauzionale per evitare che l'accumulo di idrogeno all'interno del contenimento del reattore possa produrre con l'ossigeno una miscela esplosiva. La pressione all'interno del reattore, stando a IEEESpectrum, sarebbe salita dai 157 kPa di 5 kPa. Il kPa è l'unità di misura della pressione nel sistema internazionale e giusto per darvi un idea, la pressione atmosferica è poco più di 101 kPa. In base alle informazioni distribuite da Citizens’ Nuclear Information Center (un'associazione antinuclearista) la pressione massima che può sostenere il contenimento è di 429 kPa, mentre subito dopo il terremoto dello scorso 11 marzo la pressione era arrivata fino a 850 kPa, prima che TEPCO decidesse di ventilare il contenimento con rilascio di contaminanti in atmosfera.
- 7/04/2011 - 20:00: Nel comunicato stampa IAEA viene chiarita la situazione dopo la scossa di questa sera (pomeriggio in Italia).
- Le condizioni di Fukushima Daiichi e Daini restano invariate
- La centrale di Onagawa era in cold-shutdown dall'11 marzo e il terremoto ha interrotto 2 delle 3 linee di alimentazione esterne. Il raffreddamento della piscina del combustibile esausto si è momentaneamente interrotto, ma è poi ripartito.
- Tokai Daini: ok.
- Higashidori: è andata persa l'alimentazione di rete esterna. Sono attualmente in funzione i generatori di emergenza. Tutto il combustibile era stato rimosso dal reattore e la piscina è attualmente raffreddata.
- Tomari era l'unico di questi impianti in funzione. La società che li gestisce ha deciso di abbassare la potenza al 90% a titolo precauzionale.
- L'impianto di arricchimento e riprocessamento di Rokkasho ha perso la corrente esterna e al momento è alimentato con i generatori di emergenza sul sito.
- 7/04/2011 - 20:45: Aggiornamento sulla situazione della contaminazione alimentare come riportata da IAEA. Si riferisce a 78 campioni raccolti dal 2 al 6 aprile. Di questi 52, tra cui vegetali, frutta e latte raccolti nelle prefetture di Fukushima, Gunma, Hyogo, Ibaraki, Kanagawa, Niigata, Saitama e Yamagata hanno presentato un livello di iodio e cesio o non rivelabile o sotto il limite legale per il consumo. I restanti 26 campioni tutti provenienti dal lotto di 41 raccolti nella prefettura di Fukushima sono caratterizzati da livelli di iodio o cesio in eccesso dei limiti di legge. Se ci state leggendo dal Paese del Sol Levante, vi consigliamo di leggere il comunicato IAEA per verificare se nella vostra prefettura ci sono delle restrizioni sul consumo e la distribuzione di alimenti e bevande.
- 7/4/2011 - 22:30: Per completezza pubblichiamo un bello schemino tradotto in italiano (grazie Micchan) di come e perché viene iniettato azoto nel contenimento del reattore.
- L'acqua che entra nel pressure vessel diventa vapore a causa del calore sprigionato dalle barre di combustibile, il vapore in eccesso viene condensato e torna ad essere acqua. Nel RPV (pressure vessel del reattore) potrebbe accumularsi idrogeno a causa di due processi chimici: l'ossidazione ad alta temperatura del contenimento delle barre lega di zirconio e per radiolisi, ovvero la scomposizione dell'acqua in idrogeno e ossigeno dovuta alla radiazione. In tal caso, l'idrogeno tende ad accumularsi nel contenimento e superata una certa concentrazione, la miscela idrogeno ossigeno diventa esplosiva. In presenza di azoto, la miscela resta stabile fino a concentrazioni maggiori di azoto.
- ilmarion ha trovato sul volume Radiochemistry in Nuclear Power Reactors due pagine particolarmente interessanti (uno e due) circa il ruolo del rame e altre impurezze nell'interrompere la reazione di radiolisi che comporta la scissione di H2O in H2 e O e anche la formazione del perossido di idrogeno. Visto che provare non costa nulla, al massimo si finisce nello spam, ilmarion ha inviato questo suggerimento anche alla TEPCO.
- Concludiamo con la mappa di dose ambientale nei dintorni della centrale di Fukushima.
0 commenti:
Posta un commento
Chiunque può lasciare commenti su questo blog, ammesso che vengano rispettate due regole fondamentali: la buona educazione e il rispetto per gli altri.
Per commentare potete utilizzare diversi modi di autenticazione, da Google a Facebook e Twitter se non volete farvi un account su Disqus che resta sempre la nostra scelta consigliata.
Potete utilizzare tag HTML <b>, <i> e <a> per mettere in grassetto, in corsivo il testo ed inserire link ipertestuali come spiegato in questo tutorial. Per aggiungere un'immagine potete trascinarla dal vostro pc sopra lo spazio commenti.
A questo indirizzo trovate indicazioni su come ricevere notifiche via email sui nuovi commenti pubblicati.